€230.000
- Tipo Proprietà: Appartamento
- Tipo di Offerta: Vendita
- Città: Monza
- Codice Postale: 20900
- Zona: STAZIONE SOBBORGHI - VIA BERGAMO
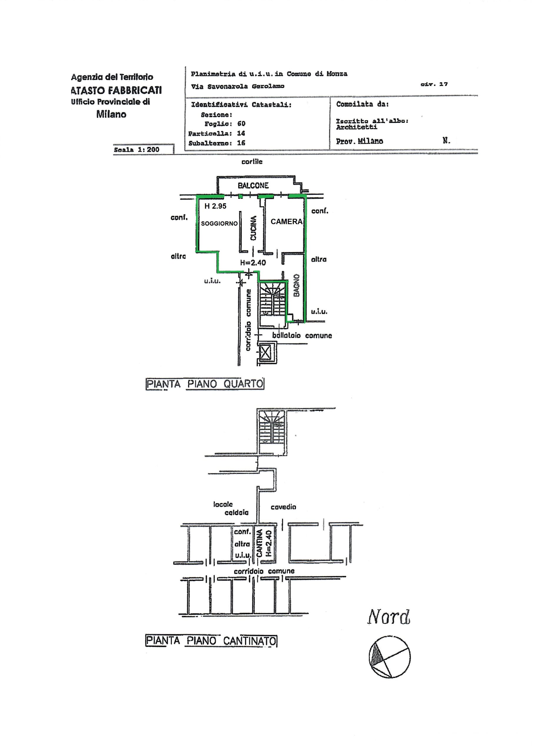
- Via: SAVONAROLA 17
- Stanze da letto: 1
- Bagni: 1
- Area Proprietà: 75 mq
- Anno: 1970
Caratteristiche e accessori
- APE F 249.01
Descrizione
OTTIMO BILOCALE ADIACENTE AL CENTRO
In contesto degli anni settanta, in zona comoda per raggiungere il centro città e le stazioni.
Ampio bilocale così composto: ampio ingresso, soggiorno, cucina abitabile, camera da letto bagno finestrato, balcone e annesso vano cantina. L’appartamento è stato finemente ristrutturato, il riscaldamento è centralizzato. La zona adiacente offre tutti i servizi di prima necessità, supermercato di fronte a casa, scuole, asili, la stazione sobborghi dista pochi metri, un km circa per la stazione centrale e vicinissimo al centro città.
L’appartamento viene venduto con la cucina arredata e il mobile bagno.
Possibilità di acquisto di un box singolo ad euro 20.000,00.
- ID: 4060
- Published: 4 Settembre 2025
- Last Update: 4 Settembre 2025
- Views: 36